(Chamada para a rede móvel nacional)
415.000€
Referência
cf0440LT2
Natureza
Venda
Tipo de Imóvel
Moradia
Subtipo de Imóvel
Moradia Geminada
Tipologia
T3
Estado
Novo
Certificado energético
A
Ano
2025
Distrito
Aveiro
Concelho
Santa Maria da Feira
Freguesia
Santa Maria da Feira, Travanca, Sanfins e Espargo
Código Postal
4520
Área Útil
110.1 m2
Área Bruta
161.8 m2
Área de Terreno
343 m2
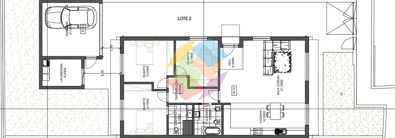
Se procura conforto, modernidade e qualidade, esta moradia térrea T3 de três frentes, inserida num lote de 343 m², é o investimento certo para si. Com linhas modernas e materiais de elevada qualidade, foi pensada para oferecer muita luminosidade e o máximo de bem-estar e funcionalidade. Localizada numa zona tranquila de moradias em Travanca, Santa Maria da Feira, a poucos minutos do centro da cidade, conjuga sossego e conveniência. A moradia encontra-se em fase inicial de construção, com conclusão prevista para o início de 2027, permitindo-lhe acompanhar o processo de construção e de personalizar alguns detalhes. Principais características: • Hall de entrada acolhedor; • Sala e cozinha em open space, com acesso direto ao jardim; • Suíte e dois quartos com roupeiros embutidos e acesso direto ao logradouro exterior; • Casa de banho completa; • Excelentes acabamentos e luminosidade natural; Exterior: • Excelente zona de jardim na frente e nas traseiras e espaçoso logradouro para poder aproveitar as suas festas de amigos e de lazer; • Garagem fechada e lavandaria; Um lar moderno, funcional e preparado para oferecer a qualidade de vida que merece. Equipamentos: • Equipamentos de cozinha (placa de indução, forno, chaminé de exaustão, micro-ondas, frigorífico combinado e máquina de louça) marca Bosh; • Vídeo porteiro; • Caixilharia em Alumínio com corte térmico, cor antracite mate; • Vidro duplo com caixa de ar e proteção solar; • Estores elétricos com comando à distância e wi-fi, na cor antracite mate; • Ar condicionado Proteu c/Wi-Fi; • Focos Led embutidos em toda a casa; • Focos embutidos no muro do logradouro exterior; • Carpintaria em madeira Sucupira; • Portas interiores até ao teto; • Paredes exteriores com isolamento em capoto de 8cm, revestidas de cor branca e cinza; • Revestimento do piso em vinil na cor carvalho vintage; • Louças suspensas nas casas de banho marca Sanitana; • Móveis suspensos com espelho nas casas de banho; • Bomba de calor Proteu 300 litros; • Torneiras marca Grohe; • Portas e janelas de correr em alumínio de cor cinza antracite mate; • Portão de garagem com motor elétrico, comando à distância e acabamento de cor cinza antracite; • Portão da rua da garagem com comando à distância na cor cinza antracite mate; • Portão de entrada a pé em alumínio de cor cinza antracite mate; • Garagem – Pré-instalação para carregamento de carros eléctricos; Aproveite, não perca a oportunidade marque já visita!!! Quanto ao financiamento, reforçamos que somos intermediários de Crédito Habitação autorizados pelo Banco de Portugal, desta forma e para sua maior comodidade, podemos ajudá-lo ao longo de todo o processo até a escritura. Carlos Fonseca 967 389 671 AMI 10354
| Gerais | Mobilado: | Sim |
|---|---|---|
| Gerais | Nº de Casas de Banho: | 2 |
| Gerais | Lavandaria: | Sim |
| Gerais | Suite: | Sim |
| Climatização | Ar condicionado: | Sim |
| Caixilharia | Termolacada: | Sim |
| Caixilharia | Vidro Duplo: | Sim |
| Caixilharia | Estores: | Sim |
| Vistas | Campo: | Sim |
| Vistas | Jardins: | Sim |
| Vistas | Rio: | Sim |
| Vistas | Serra: | Sim |
| Exposição Solar | Nascente: | Sim |
| Exposição Solar | Norte: | Sim |
| Exposição Solar | Poente: | Sim |
| Luz Natural | Muito Iluminado: | Sim |
| Ar Condicionado | Completo: | Sim |
| Garagem | Fechada Exterior: | Sim |
| Cozinha | Móveis lacado: | Sim |
| Cozinha | Cerâmica: | Sim |
| Cozinha | Placa: | Sim |
| Cozinha | Forno: | Sim |
| Cozinha | Exaustor: | Sim |
| Cozinha | Micro-ondas: | Sim |
| Cozinha | Máquina de lavar loiça: | Sim |
| Pavimento | Piso vinílico: | Sim |
| Pavimento | Cerâmica: | Sim |
| Pavimento | Flutuante: | Sim |
| Tipo de Empreendimento | Habitação: | Sim |
|---|---|---|
| Isolamento | Acústico: | Sim |
| Isolamento | Térmico: | Sim |
| Equipamento | Churrasqueira: | Sim |
| Equipamento | Gás canalizado: | Sim |
| Equipamento | Jardins: | Sim |
| Equipamento | Video-Porteiro: | Sim |
| Água | Companhia: | Sim |
| Gerais | Nº de Lugares de Estacionamento: | 1 |
| Gerais | Nº de Garagens: | 1 |
| Garagem | Portão automático: | Sim |
| Garagem | Água: | Sim |
| Garagem | Luz: | Sim |
| Revestimento Exterior | Capoto: | Sim |
| Gerais | Estores elétricos: | Sim |
|---|---|---|
| Alarme | Pré-instalação: | Sim |
| Painel Solar | Pré-instalado: | Sim |
| Gerais | Auto-Estrada: | Sim |
|---|---|---|
| Gerais | Comboio: | Sim |
| Gerais | Perto de mar: | Sim |
| Gerais | Perto de rio: | Sim |
| Gerais | Transportes públicos: | Sim |
| Proximidade | Bancos: | Sim |
| Proximidade | Bombeiros: | Sim |
| Proximidade | Centros comerciais: | Sim |
| Proximidade | Clínicas: | Sim |
| Proximidade | Escolas: | Sim |
| Proximidade | Farmácias: | Sim |
| Proximidade | Ginásios: | Sim |
| Proximidade | Hospitais: | Sim |
| Proximidade | Jardins: | Sim |
| Proximidade | Jardins de infância: | Sim |
| Proximidade | Padarias: | Sim |
| Proximidade | Polícia: | Sim |
| Proximidade | Praias: | Sim |
| Proximidade | Serviços públicos: | Sim |
| Proximidade | Universidade: | Sim |
| Acessos | Alcatrão: | Sim |
| Centralidade | Junto à cidade: | Sim |
Este imóvel não tem áreas definidas.
465.000€
465.000€
Aveiro / Santa Maria da Feira / Santa Maria da Feira, Travanca, Sanfins e Espargo
Ref: cf0433DIR
Ref: cf0433DIR
415.000€
415.000€
Aveiro / Santa Maria da Feira / Santa Maria da Feira, Travanca, Sanfins e Espargo
Ref: cf0440LT5
Ref: cf0440LT5
440.000€
440.000€
Aveiro / Santa Maria da Feira / Santa Maria de Lamas
Ref: AGNSMLAMASNOVA1
Ref: AGNSMLAMASNOVA1